Gå til hovedindhold

Behandling af Job & Aktivitetscenter Vestegnen

Behandlingen af Job & Aktivitetscenter Vestegnen (JAC) for skimmelsvamp går i gang lørdag den 20. april 2024.

Indhold

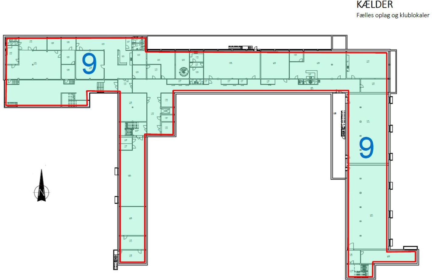
    Der er nu lagt en endelig køreplan for behandling af skimmelsvamp i den del af Langbjergbygningen, som huser JAC.

    Al behandling sker på lørdage og søndage fra 07-20, hvor ingen har adgang til bygningen. Efter en grundig udluftning er lokalerne klar til brug fra den efterfølgende mandag morgen kl. 05.

    • Lørdag den 20. april: Den sydlige halvdel samt den nordøstlige del af stuen (område 7)
    • Søndag den 21. april: Den nordvestlige del af stuen og hele 1. sal (område 8)
    • Lørdag den 27. april: Kælderetagen (område 9)
    • Søndag den 28. april: Trapper og elevatorskakt
    Sidst opdateret: 21. januar 2025